158 North Road, Finglas, Dublin, Dublin, D11

  • Unconditional Online Auction Sale
  • AMV : 320.000
  • Bedrooms: 3

For Sale by REA McGee Online Auction on the 17th November 2022 . Start Time: 12 Noon . End Time: 12.30pm.

Location

The location of No. 158 is second to none. Located at the end of a quiet cul de sac, while adjacent to Finglas Village, local schools, parks, and recreational facilities. There is an excellent bus service literally on your doorstep offering direct access to the City Centre whilst Dublin Airport, the M50 & M1 Motorways are within minutes.. No 158 is also within an excellent catchment area for both primary and secondary schools.

Description

REA McGEE are delighted to present No 158 North Road to the market , which offers huge potential to transform into a fantastic home. This superb property is in need of refurbishment but offers a blank canvas oozing potential to extend or reconfigure the existing layout. This spacious well laid out accommodation briefly consists of entrance hallway, livingroom, dining room, kitchen, 3 bedrooms and a family bathroom.

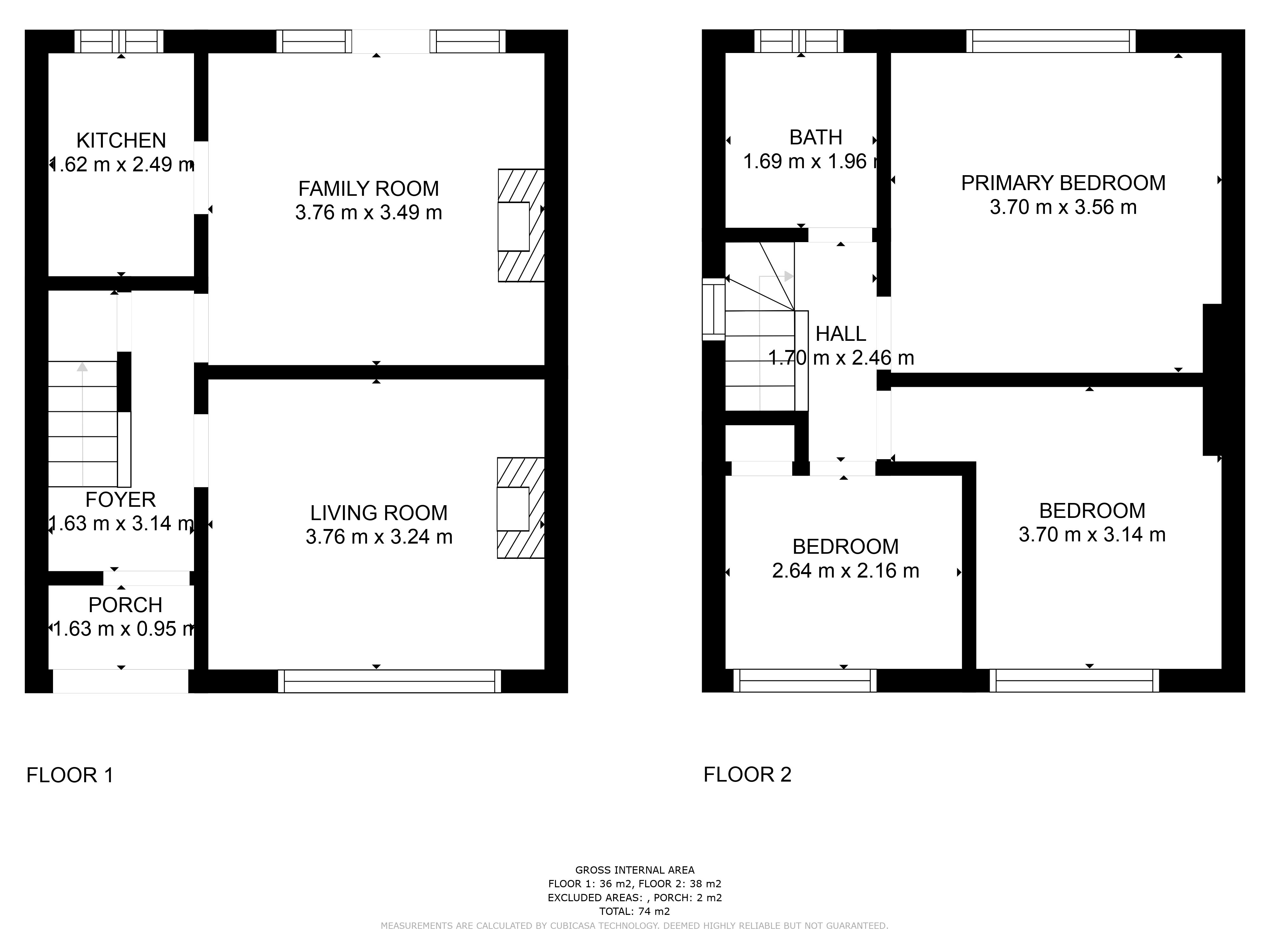
Accommodation

Entrance Hallway:
3.79m x 1.7m
Livingroom:
3.93m x 3.33m
Dining room:
3.66m x 3.48m
Kitchen:
2.6m x 1.67m
Bedroom 1
3.96m x 3.7m
Bedroom 2:
3.3m x 3.0m
Bedroom 3:
2.6m x 2.4m

Bathroom:
Wc., whb, bath,
Garden: 16.1 m x 7.6m

BER No: 114509300

Loading the bidding panel...

Terms & Conditions to bid on this Property

Related Documents

Make an Enquiry

Submit an enquiry and someone will be in contact shortly.

 
*  
*  
*
*
*

Share